【現地内覧会】世田谷区喜多見5丁目 新築戸建 A号棟 9490万円
【現地内覧会】
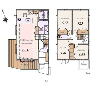
■南×西の2面を確保したウッドデッキ付き4LDK
■LDK21帖超のゆとりある住空間
■1階にリビングと水廻りを配した 暮らしやすい間取りプラン
■南東約6m公道に面し、お車の出し入れも快適です
ローンシミュレーションこの物件を購入した場合の、月々の支払い価格の一例です。借り入れを保証するものではございません。
- 返済期間
-
- 金利
-
- ボーナス時の増額(1回分)
-
- 借入金額:
-
- 頭金:
-

- 毎月の返済額:
(※元利均等方式 金利5.00%まで ※返済年数5~50年まで入力できます)
(※ボーナスは年2回で計算しています。1000万円まで入力できます)
(※物件購入時、その他諸費用が発生する場合がございます)
担当者のコメント 畑裕貴

- 【現地内覧会】
LDK21帖超・南×西の二面を確保したウッドデッキ付き4LDKが完成しました。
南東側6m公道面。
ハイクラスの設備仕様に洗練されたデザインの最終1棟。
ぜひ現地にてご覧下さい。
ご内覧のご予約や詳細などは「0120-46-1013/info@smart-h.jp」まで お気軽にお問合せ下さい。
ポイント・特徴
~設備仕様~ エコジョーズ 床暖房 食器洗い乾燥機 浄水器 浴室乾燥機 浴室TV(16インチ) エアインシャワー 4面鏡2ボウル洗面化粧台 タンクスッキリトイレ 手洗いキャビネット付き ハイドア エコカラット 大理石調フローリング(一部) 散水栓 ウッドデッキ 宅配ボックス 人感センサー付きLEDライト 網戸 シャッター タグキー ディンプルキー TVモニターインターホン 制震
物件概要
【新築一戸建】 物件番号:97002727 情報更新日:2025年12月13日 次回更新予定日:2025年12月27日| 所在地 | 東京都世田谷区喜多見5丁目 | ||
|---|---|---|---|
| 交通 | |||
| 間取り/詳細 | 4LDK/ | 建物面積(坪数) | 104.43㎡(31.59坪) |
| 価格 | 9,490万円 | ||
| 駐車場/月額料金 | 有/- | ||
| 土地の敷金/保証金 | -/- | 借地料/借地期間 | -/- |
| 土地権利 | 所有権 | 土地面積(坪数) | 146.86㎡(44.42坪) |
| 傾斜地部分面積 | - | 路地状敷地 | - |
| 私道負担面積/セットバック | -/- | 高圧線下面積 | - |
| 地目/地勢 | 宅地/- | 接道状況 | 一方(南東 公道 6.0m) |
| 建ぺい率/容積率 | 40%/80% | 用途地域 | 第一種低層住居専用 |
| 都市計画 | - | 種別/構造 | 新築一戸建/木造 |
| 階建 | 2階建 | 築年月(築年数) | 2025年 4月 (新築) |
| 総区画数/販売区画数 | 3区画/1区画 | 向き | 南 |
| 現況 | 完成済み | その他の法令上の制限 | 景観法/高度地区/準防火地域/風致地区/高さ最高限度有 |
| 取引態様/引渡時期 | 一般媒介/即時 | 建築確認番号 | 第KSI24-3110-51617号 |
| 物件番号 | 97002727 | 取引条件の有効期限 | 2025年12月27日 |
| 設備条件 |
|
||
| 備考 | ■現地内覧会開催しております、お気軽にお問合せ下さい。 | ||
| 取扱会社 |
|
||
※地図上に表示される物件の位置は付近住所に所在することを表すものであり、実際の物件所在地とは異なる場合がございます。
















